1. Samozatezna tesnilna votlina: Visokotlačni visokotemperaturni krožni ventil ima tlačno ojačano tesnilno zasnovo s standardnimi privarjenimi poševnimi robovi na vstopnem in izstopnem koncu.
2. Tesnilni sistem iz trde zlitine: Tesnilna površina diska/sedeža ventila je izdelana iz zlitine volfram-krom-kobalt na osnovi kobalta, z mejo temperaturne odpornosti 650 ℃ in 300-odstotnim povečanjem odpornosti proti obrabi. Po 50.000 ciklih odpiranja in zapiranja je stopnja celovitosti tesnilne površine ≥98 %.
3. Visoko trdno kompozitno steblo ventila: kaljena in toplotno obdelana matrica ter površinsko nitriranje.
4. Tesnilna škatla za preprečevanje korozije z globokimi votlinami: Dodani so zaviralci korozije, da se doseže ničelno puščanje, kar zmanjša torni moment na 60 % standardne strukture.
Standard oblikovanja: ASME B16.34M
Dolžina strukture: SME B16.10
Test in pregled: API 598
Tlak - temperatura: ASME B16.34
Identifikacija izdelka: ASME B16.34
| Nazivni tlak | 150 LB | 300 LB | 600 LB | 900 LB | 1500 LB | 2500 LB | |
| Delovni pritisk | 2.0 | 5.0 | 10.0 | 15.0 | 25.0 | 45.0 | |
| primerna temperatura(℃) | ≤570 | ≤570 | ≤570 | ≤570 | ≤570 | ≤570 | |
| Primerni mediji | Para in druge visoke temperature in visoke vrednosti tlaka | ||||||
| material | Karoserija, pokrov motorja | Krom molibden vanadijevo jeklo | |||||
| Disk | Krom molibden vanadijevo jeklo + zlitina za trdo navarivanje | ||||||
| Sedež | Krom molibden vanadijevo jeklo + zlitina za trdo navarivanje | ||||||
| Steblo ventila | Krom molibden vanadijevo jeklo | ||||||
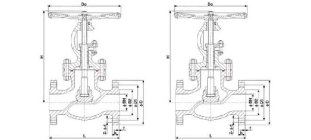
| DN | L | D | D1 | D2 | f | b | z-Φd | H | D0 |
| 150 (LB) | |||||||||
| DN15 | 108 | 90 | 60.3 | 35 | 2 | 8 | 4-Φ16 | 235 | 125 |
| DN20 | 117 | 100 | 70 | 43 | 2 | 9 | 4-Φ16 | 241 | 125 |
| DN25 | 127 | 110 | 79.4 | 51 | 2 | 9.6 | 4-Φ16 | 242 | 125 |
| DN32 | 140 | 115 | 89 | 63.5 | 2 | 11.2 | 4-Φ16 | 280 | 160 |
| DN40 | 165 | 125 | 98.4 | 73 | 2 | 12.7 | 4-Φ16 | 315 | 160 |
| DN50 | 203 | 150 | 120.7 | 92 | 2 | 14.3 | 4-Φ19 | 350 | 200 |
| DN65 | 216 | 180 | 139.7 | 105 | 2 | 15.9 | 4-Φ19 | 370 | 200 |
| DN80 | 241 | 190 | 152.4 | 127 | 2 | 17.5 | 4-Φ19 | 385 | 250 |
| DN100 | 292 | 230 | 190.5 | 157.2 | 2 | 22.3 | 8-Φ19 | 454 | 250 |
| DN125 | 356 | 255 | 216 | 185.7 | 2 | 22.3 | 8-Φ22.5 | 472 | 355 |
| DN150 | 406 | 280 | 241.5 | 216 | 2 | 23.9 | 8-Φ22.5 | 541 | 355 |
| DN200 | 495 | 345 | 298.5 | 270 | 2 | 27 | 8-Φ22.5 | 590 | 450 |
| DN250 | 622 | 405 | 362 | 324 | 2 | 28.6 | 12-Φ25.5 | 780 | 450 |
| DN300 | 698 | 485 | 438 | 381 | 2 | 30.2 | 12-Φ25.5 | 870 | 500 |
| DN350 | 787 | 535 | 476.3 | 413 | 2 | 33.4 | 12-Φ28.5 | 900 | 600 |
| DN400 | 914 | 595 | 540 | 470 | 2 | 35 | 16-Φ28.5 | 1250 | 600 |
| DN450 | - | 635 | 578 | 533.4 | 2 | 38.1 | 16-Φ32 | - | 610 |
| 300 (LB) | |||||||||
| DN15 | 152 | 95 | 66.7 | 35 | 2 | 12.7 | 4-Φ16 | 241 | 125 |
| DN20 | 178 | 115 | 82.6 | 43 | 2 | 14.3 | 4-Φ19 | 241 | 125 |
| DN25 | 203 | 125 | 89 | 50.8 | 2 | 15.9 | 4-Φ19 | 283 | 160 |
| DN32 | 216 | 135 | 98.5 | 63.5 | 2 | 17.5 | 4-Φ19 | 320 | 200 |
| DN40 | 229 | 155 | 114.3 | 73 | 2 | 19.1 | 4-Φ22.5 | 322 | 200 |
| DN50 | 267 | 165 | 127 | 92.1 | 2 | 20.7 | 8-Φ19 | 345 | 200 |
| DN65 | 292 | 190 | 149.2 | 104.8 | 2 | 23.9 | 8-Φ22.5 | 377 | 250 |
| DN80 | 318 | 210 | 168.3 | 127 | 2 | 27 | 8-Φ22.5 | 464 | 280 |
| DN100 | 356 | 255 | 200 | 157.2 | 2 | 30.2 | 8-Φ22.5 | 490 | 355 |
| DN125 | 400 | 280 | 235 | 185.7 | 2 | 33.4 | 8-Φ22.5 | 614 | 400 |
| DN150 | 444 | 320 | 270 | 216 | 2 | 35 | 12-Φ22.5 | 700 | 450 |
| DN200 | 559 | 380 | 330.2 | 270 | 2 | 39.7 | 12-Φ25.5 | 777 | 500 |
| DN250 | 622 | 445 | 387.4 | 323.8 | 2 | 46.1 | 16-Φ28.5 | 935 | 550 |
| DN300 | 711 | 520 | 450.8 | 381 | 2 | 49.3 | 16-Φ32 | 997 | 600 |
| DN350 | 762 | 585 | 514.4 | 412.8 | 2 | 52.4 | 20-Φ32 | 1058 | 650 |
| DN400 | 864 | 650 | 571.5 | 470 | 2 | 55.6 | 20-Φ35 | 1320 | 700 |
| 600 (LB) | |||||||||
| DN15 | 165 | 95 | 66.7 | 35 | 7 | 14.3 | 4-Φ16 | 245 | 156 |
| DN20 | 190 | 115 | 82.6 | 43 | 7 | 15.9 | 4-Φ19 | 245 | 161 |
| DN25 | 216 | 125 | 89 | 50.8 | 7 | 17.5 | 4-Φ19 | 290 | 187 |
| DN32 | 229 | 135 | 98.4 | 63.5 | 7 | 20.7 | 4-Φ19 | 325 | 214 |
| DN40 | 241 | 155 | 114.3 | 73 | 7 | 22.3 | 4-Φ22.5 | 330 | 252 |
| DN50 | 292 | 165 | 127 | 92.1 | 7 | 25.4 | 8-Φ19 | 345 | 430 |
| DN65 | 330 | 190 | 149.2 | 104.8 | 7 | 28.6 | 8-Φ22.5 | 365 | 480 |
| DN80 | 356 | 210 | 168.3 | 127 | 7 | 31.8 | 8-Φ22.5 | 465 | 530 |
| DN100 | 432 | 275 | 216 | 157 | 7 | 38.1 | 8-Φ25.5 | 520 | 650 |
| DN125 | 508 | 330 | 266.7 | 185.7 | 7 | 44.5 | 8-Φ28.5 | 635 | 750 |
| DN150 | 559 | 355 | 292.1 | 216 | 7 | 47.7 | 12-Φ28.5 | 763 | 850 |
| DN200 | 660 | 420 | 349.2 | 270 | 7 | 55.6 | 12-Φ32 | 845 | 1050 |
| DN250 | 787 | 510 | 431.8 | 323.8 | 7 | 63.5 | 16-Φ35 | 930 | 1257 |
| DN300 | 838 | 560 | 489 | 381 | 7 | 66.7 | 20-Φ35 | 1010 | 1468 |
| DN350 | 889 | 605 | 527 | 412.8 | 7 | 69.9 | 20-Φ38 | 1090 | 1623 |
| DN400 | 991 | 685 | 603.2 | 470 | 7 | 76.2 | 20-Φ41 | 1140 | 1816 |
| 900 (LB) | |||||||||
| DN50 | 368 | 215 | 165.1 | 92.1 | 7 | 38.1 | 8-Φ25.5 | 430 | 320 |
| DN65 | 419 | 245 | 190.5 | 104.8 | 7 | 41.3 | 8-Φ28.5 | 530 | 320 |
| DN80 | 381 | 265 | 190.5 | 127 | 7 | 38.1 | 8-Φ28.5 | 580 | 360 |
| DN100 | 457 | 290 | 235 | 157.2 | 7 | 44.5 | 8-Φ32 | 690 | 450 |
| DN125 | 559 | 350 | 279.4 | 185.7 | 7 | 50.8 | 8-Φ35 | 780 | 560 |
| DN150 | 610 | 380 | 317.5 | 216 | 7 | 55.6 | 12-Φ32 | 890 | 630 |
| DN200 | 737 | 470 | 393.7 | 270 | 7 | 63.5 | 12-Φ38 | 1240 | 720 |
| DN250 | 838 | 545 | 470 | 323.8 | 7 | 69.9 | 16-Φ38 | 1651 | 760 |
| 1500 (LB) | |||||||||
| DN65 | 419 | 245 | 190.5 | 104.8 | 7 | 41.6 | 8-Φ28.5 | 530 | 400 |
| DN80 | 470 | 265 | 203.2 | 127 | 7 | 47.7 | 8-Φ32 | 590 | 450 |
| DN100 | 546 | 310 | 241.3 | 157.2 | 7 | 54 | 8-Φ35 | 710 | 500 |
| DN125 | 673 | 375 | 292.1 | 185.7 | 7 | 73.1 | 8-Φ41 | 780 | 560 |
| DN150 | 705 | 395 | 317.5 | 215.9 | 7 | 82.6 | 12-Φ38 | 904 | 630 |
| DN200 | 832 | 485 | 393.7 | 270 | 7 | 92.1 | 12-Φ45 | 1140 | 560 |
| 2500 (LB) | |||||||||
| DN65 | 508 | 265 | 196.8 | 104.8 | 7 | 57.2 | 8-Φ32 | 740 | 400 |
| DN80 | 578 | 305 | 228.6 | 127 | 7 | 66.7 | 8-Φ35 | 780 | 450 |
| DN100 | 637 | 355 | 273 | 157.2 | 7 | 76.2 | 8-Φ41 | 860 | 560 |
| DN125 | 794 | 420 | 323.8 | 185.7 | 7 | 92.1 | 8-Φ48 | 930 | 630 |
| DN150 | 914 | 485 | 368.3 | 216 | 7 | 108 | 8-Φ54 | 1070 | 560 |
| DN200 | 1022 | 550 | 438.2 | 270 | 7 | 127 | 12-Φ54 | 1180 | 630 |
Naslov
No.1, North 1st Road, Stainless Steel New Town, Lecong Steel World West Road, Shunde District, Foshan City, Guangdong Province, Kitajska
Tel
E-naslov
Za poizvedbe o zapornih ventilih, krožnih ventilih in protipovratnih ventilih ali ceniku nam pustite svoj e-poštni naslov in kontaktirali vas bomo v 24 urah.